-
-
-
Tổng tiền thanh toán:
-
Thanh toán nhanh
Hỗ trợ thanh toán tiền mặt, thẻ visa tất cả các ngân hàng
Hỗ trợ thanh toán tiền mặt, thẻ visa tất cả các ngân hàng
Hỗ trợ chăm sóc khách hàng 24/7
Hợp Tiến là thương hiệu được yêu thích và lựa chọn
Mẫu thang máy tiêu chuẩn là một lựa chọn phổ biến hiện nay, được thiết kế cơ bản, phù hợp với các tòa nhà văn phòng, khách sạn, hay các tòa nhà gia đình từ 3 tầng trở lên. Với khả năng vận chuyển nhanh chóng và an toàn, mẫu thang máy tiêu chuẩn đã trở thành một phần không thể thiếu trong cuộc sống.
Mẫu thang máy tiêu chuẩn thường được trang bị các tính năng tiên tiến như hệ thống an toàn, kiểm soát tải trọng sử dụng, và các công nghệ thông minh khác, đảm bảo sự an toàn và tiện lợi cho người sử dụng.

Ưu điểm nổi bật:
- Tiết kiệm điện năng: Thang máy hiện đại sử dụng biến tần kết nối giữa tủ điều khiển chính và máy kéo thang máy. Biến tần chuyên dụng cho thang máy điều khiển tốc độ vô cấp thông qua việc thay đổi điện áp và tần số đảm bảo cho thang máy hoạt động êm ái và dừng tầng chính xác, đồng thời tiết kiệm được 40% điện năng.
- Hệ điều khiển thông minh: Sử dụng điều khiển thang máy đồng bộ thông minh và tiên tiến nhất trên thị trường hiện nay. Kết nối truyền thông CANBUS 32 bít giúp xử lý tín hiệu nhanh hơn, chính xác hơn. Có khả năng điều khiển đơn, điều khiển nhóm, nhớ lệnh hai chiều lên-xuống, tự ưu tiên chiều đang hoạt động, hủy lệnh thừa.
- Máy kéo: Sử dụng máy kéo nhập khẩu của các hãng có uy tín trên thế giới như: Fuji, Torin, Montari (Italia), Ziehl-abegg (Đức), Mitsubishi (Thailand), Otis

- Cảm biến cửa hồng ngoại (Photocell): Cảm biến cửa tránh va đập cánh cửa thang máy vào người khi di chuyển qua cửa thang máy. Thiết bị này được tích hợp về tủ điều khiển chính cửa sẽ tự động mở trở lại khi có vật cản hoặc người che chắn vào vùng cảm biến. Thiết bị có còi báo hiệu cho hành khách nếu che chắn hoặc giữ cửa thang quá lâu.
- Mẫu mã đa dạng: Công ty sẵn sàng đáp ứng tất cả các khách hàng khó tính nhất bằng việc luôn luôn cải tiến, nghiên cứu vật liệu mới, mẫu mã mới cho khách hàng lựa chọn.



- Bộ truyền động cửa cabin: Thiết bị truyền động cửa cabin có sử dụng biến tần cửa thang máy để tiết kiệm điện và kiểm soát tốc độ trong quá trình đóng – mở giúp cho cửa thang máy hoạt động êm dịu, không gây ra tiếng ồn khó chịu.
- Kiểm soát ra vào cửa thang máy: Dễ dàng tích hợp bộ kiểm soát cửa thang máy bằng thẻ từ, vân tay hay mã ID riêng cho từng người sử dụng. Bộ kiểm soát cửa có thể mở rộng đến hàng nghìn địa chỉ ID.
- Hệ thống an toàn tuyệt đối: Tích hợp đầy đủ hệ thống an toàn thang máy như: An toàn cửa cabin, an toàn cửa tầng, chống vượt hành trình cabin,... Đặc biệt là hệ thống phanh chống rơi tự do. Trường hợp cáp tải bị đứt hệ thống phanh cơ khí sẽ hoạt động giúp cabin dừng ngay tức khắc tránh thương vong về người và tải sản.
- UPS tích điện thang máy: Bộ phận tích điện cứu hộ thang máy khi thang máy mất điện lưới đột ngột. Bộ cứu hộ này sẽ đưa cabin về tầng gần nhất và mở cửa cho hành khách thoát ra ngoài an toàn.
- Thay thế vật tư, linh kiện dễ dàng: Thiết bị thang máy được lắp đặt dưới dạng modul rời rất dễ tháo - lắp khi sửa chữa và bảo trì thang máy. Một số chi tiết bạn có thể tự tháo lắp để sửa chữa khi cần.
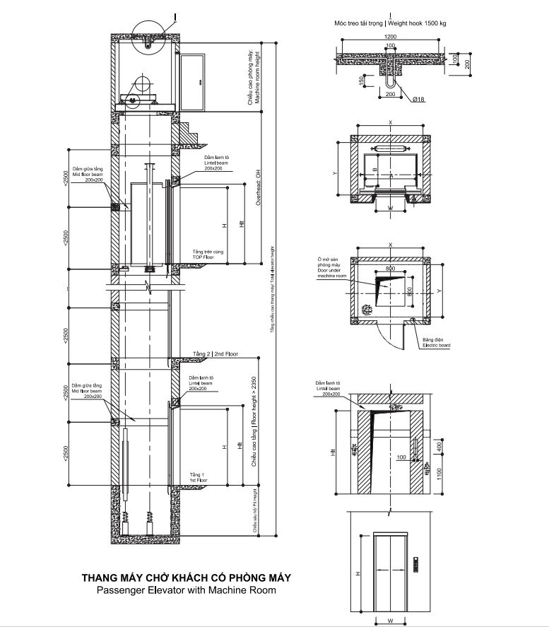
Loại thang máy có phòng máy (MR)
Ưu điểm:
- Dễ dàng thực hiện bảo trì, bảo dưỡng do có phòng máy riêng biệt
- Đáp ứng nhu cầu về tải trọng cao, hành trình dài, nhu cầu sử dụng thang máy lớn
- Đáp ứng tốc độ cao
Nhược điểm: Một số công trình có diện tích nhỏ và hạn chế về chiều cao cần cân nhắc khi dùng loại thang này vì cần xây dựng thêm phòng máy.
Bản vẽ thiết kế hố thang máy có phòng máy:

Các thông số kỹ thuật của dòng thang máy có phòng máy:

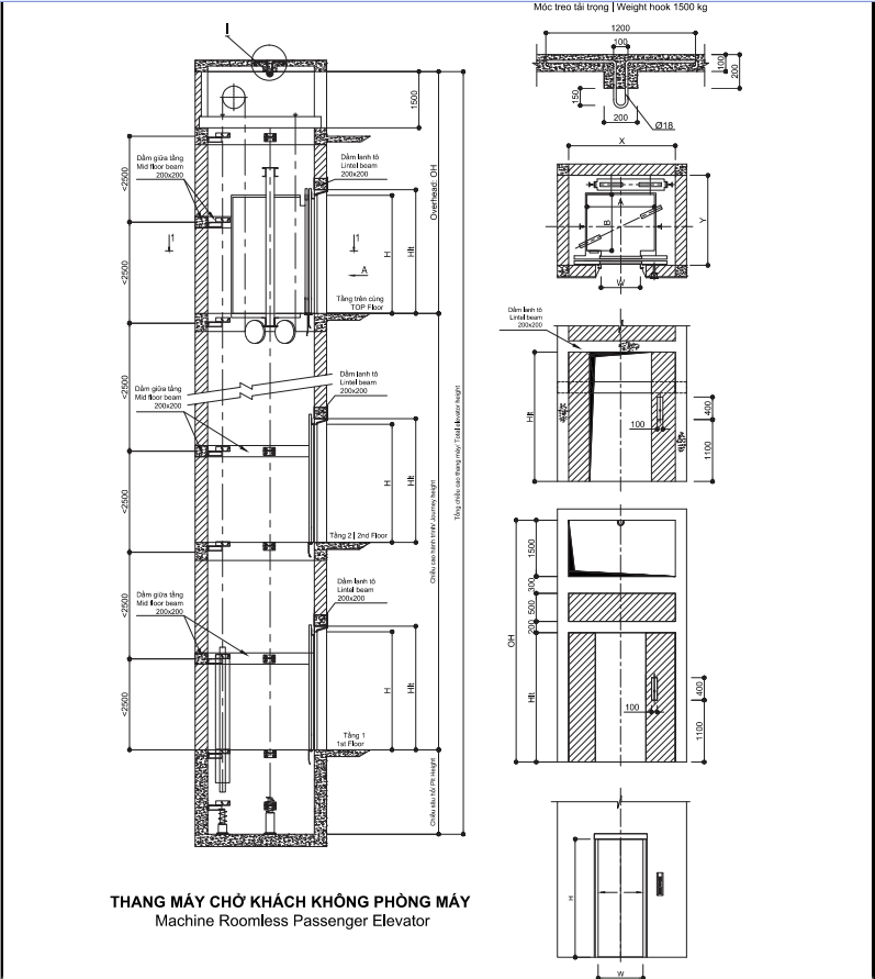
Loại thang máy không có phòng máy (MRL)
Ưu điểm:
- Giảm chiều cao của hố thang máy, phù hợp với các khu đô tthij bị giới hạn chiều cao.
- Tiết kiệm chi phí xây dựng do không cần phải xây dựng thêm phòng máy
- Sử dụng máy kéo không hộp số: hiệu suất cao, tiết kiệm điện, độ ồn nhỏ
Nhược điểm: thang máy không phòng máy gây khó khăn cho việc bảo trì, sửa chữa do không có phòng máy.

Các thông số kỹ thuật của dòng thang máy không phòng máy:

* Chất lượng thang máy:
- Thiết bị thang máy được nhập khẩu mới 100%, nguyên đai, nguyên kiện chính hãng;
- Cam kết đầy đủ giấy chứng nhận xuất xứ (CO), giấy chứng nhận chất lượng (CQ) của hàng hóa.
* Tại sao bạn nên chọn mua thang máy tại Thang máy Hợp Tiến ?
- Với bề dày phát triển lâu năm cùng chế độ dịch vụ hậu mãi, bảo hành và bảo trì tốt sẽ giúp thiết bị thang máy hoạt động ở trạng thái tốt nhất.
- Đội ngũ kỹ thuật viên lành nghề nhiều kinh nghiệm, trình độ chuyên môn cao, hoạt động rộng khắp các thành phố lớn, các tỉnh, các huyện lân cận kịp thời hỗ trợ nhanh chóng khi khách hàng yêu cầu.
- Hỗ trợ kỹ thuật nhanh chóng khi hàng hàng cần hỗ trợ
* Tư vấn miễn phí để đưa ra các giải pháp tối ưu cho công trình của quý khách hàng.
Giao hàng trên toàn quốc
Thành tiền: